Подберём квартиру под ваш запрос и бюджет

Учитываем район, метраж, этаж и цели покупки. Покажем только подходящие варианты

Подберём надёжную новостройку под ваш бюджет

Учитываем локацию, срок сдачи и цели покупки — от жизни до инвестиций

Найдём дом, дачу или участок под ваши задачи

Расскажем, где лучше купить, что построить и как не переплатить

Поможем купить или продать коммерческую недвижимость

Подберём площадку под ваш бизнес или найдём покупателя на объект

Поможем сдать или найти жильё в аренду без хлопот

Найдём надёжных арендаторов или подберём подходящий вариант под ваш запрос

Всё для быстрой и безопасной сделки — в одном месте

Подбор ипотеки, страхование, продажа под ключ — без лишних хлопот

Продается Студия, 37  м²

Россия, Санкт-Петербург, Прилукская улица, 35

Обводный Канал

9 мин.

37 м²

Общая площадь

34.33 м²

Жилая площадь

5 из 6

Этаж

Описание

Апарт-комплекс представляет из себя современные апартаменты для постоянного проживания с гостиничным сервисом. Дом построен по кирпичной технологии строительства с фасадами, облицованными кирпичом. Во входных группах и общих зонах выполнена дизайнерская отделка, установлены современные скоростные лифты.

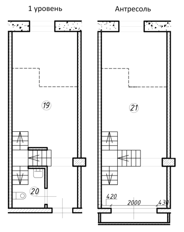
В апарт-комплексе представлено 150 двухуровневых апартаментов повышенного комфорта. Сдаются они без отделки, высотой потолков 4,2 метра, двумя уровнями освещения и панорамными окнами. Есть возможность дозаказать чистовую отделку.

В проекте предусмотрена кофейня и зона коворкинга с переговорной на 1 этаже, собственный фитнес зал. Имеется зона ресепшен с администратором 24/7 и профессиональная управляющая компания.

Апарт-комплекс находится во Фрунзенском районе, в 10 минутах пешком от метро «Обводный канал». В пешей доступности есть детские сады, школы, магазины, кафе, рестораны, салоны красоты, медицинские учреждения и ТРЦ. За 20 минут пешком можно добраться до Невского проспекта.

ID объекта: 1815247
Обновлено 1 октября

О квартире

Общая площадь

37 м²

Жилая площадь

34.33 м²

Площадь комнат

34.33 м²

Высота потолков

4.2 м

Этаж

5

Окна выходят

На улицу

О доме

Год постройки

2024

Этажность

6

Материал постройки

Кирпичный

Расположение

Россия, Санкт-Петербург, Прилукская улица, 35

Обводный Канал

9 мин.

Лиговский проспект

17 мин.

Волковская

17 мин.

Звенигородская

23 мин.

Пушкинская

23 мин.

Фрунзенская

25 мин.

Владимирская

26 мин.

Ипотечный калькулятор

Заполните 1 анкету — получите предложения от десятков банков на специальных условиях

Программа ипотеки

Семейная ипотека (от 5,75%)

Стоимость жилья, ₽

Первый взнос, ₽

Срок кредита

от 5.75%

Ставка

от 50 475 ₽

Платеж в месяц

Расчёт носит информационный характер и не является публичной офертой

Похожие объекты

. Вариант № 6228309, 0, площадь - 37 квм, цена 8023150 рублей
. Вариант № 6228309, 1, площадь - 37 квм, цена 8023150 рублей
. Вариант № 6228309, 2, площадь - 37 квм, цена 8023150 рублей
1 из 3
8 023 150 ₽

Студия, 37 м², 5/6 эт.

Обводный Канал

9 мин.

Санкт-Петербург, Прилукская улица, 35
. Вариант № 6228319, 0, площадь - 36.3 квм, цена 8625975 рублей
. Вариант № 6228319, 1, площадь - 36.3 квм, цена 8625975 рублей
. Вариант № 6228319, 2, площадь - 36.3 квм, цена 8625975 рублей
1 из 3
8 625 975 ₽

Студия, 36,3 м², 6/6 эт.

Обводный Канал

9 мин.

Санкт-Петербург, Прилукская улица, 35
. Вариант № 6228354, 0, площадь - 37 квм, цена 8792750 рублей
. Вариант № 6228354, 1, площадь - 37 квм, цена 8792750 рублей
. Вариант № 6228354, 2, площадь - 37 квм, цена 8792750 рублей
1 из 3
8 792 750 ₽

Студия, 37 м², 6/6 эт.

Обводный Канал

9 мин.

Санкт-Петербург, Прилукская улица, 35
. Вариант № 6228358, 0, площадь - 37 квм, цена 8023150 рублей
. Вариант № 6228358, 1, площадь - 37 квм, цена 8023150 рублей
. Вариант № 6228358, 2, площадь - 37 квм, цена 8023150 рублей
1 из 3
8 023 150 ₽

Студия, 37 м², 5/6 эт.

Обводный Канал

9 мин.

Санкт-Петербург, Прилукская улица, 35
. Вариант № 6228349, 0, площадь - 37 квм, цена 8792750 рублей
. Вариант № 6228349, 1, площадь - 37 квм, цена 8792750 рублей
. Вариант № 6228349, 2, площадь - 37 квм, цена 8792750 рублей
1 из 3
8 792 750 ₽

Студия, 37 м², 6/6 эт.

Обводный Канал

9 мин.

Санкт-Петербург, Прилукская улица, 35
. Вариант № 6228296, 0, площадь - 37.2 квм, цена 8066640 рублей
. Вариант № 6228296, 1, площадь - 37.2 квм, цена 8066640 рублей
. Вариант № 6228296, 2, площадь - 37.2 квм, цена 8066640 рублей
1 из 3
8 066 640 ₽

Студия, 37,2 м², 5/6 эт.

Обводный Канал

9 мин.

Санкт-Петербург, Прилукская улица, 35
8 023 150 ₽
Консультант по новостройкам

Консультант по новостройкам

8 023 150 ₽

216 842 ₽/м²