Продается 2-комн. квартира, 46.9 м²
Россия, Санкт-Петербург, Пушкинский район, посёлок Шушары, ЖК Клюква Парк
Звёздная
4 мин.
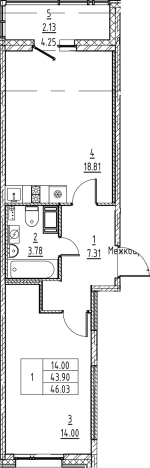
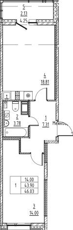
46.9 м²
Общая площадь
21.7 м²
Жилая площадь
10.1 м²
Площадь кухни
11 из 12
Этаж
Описание
В проекте предусмотрено 583 квартиры, представленные как в классическом, так и в евроформате. Квартиры сдаются без отделки, с высотой потолков 2,74 метра и стандартными окнами. Во всех квартирах, кроме второго этажа, предусмотрены балконы и лоджии с витражным остеклением.
Территория комплекса благоустроена: установлены детские и спортивные площадки, предусмотрены зоны для отдыха. На первом этаже расположены коммерческие помещения. Для хранения личного транспорта предусмотрены подземный паркинг и велопарковки.
Жилой комплекс находится в поселке Шушары. В пешей доступности расположены школы, детские сады и спортивные учреждения. За 30 минут транспортом можно добраться до города Пушкин, где можно прогуляться по паркам и садам. Метро «Купчино» находится в 15 минутах транспортом.
О квартире
Общая площадь
46.9 м²
Жилая площадь
21.7 м²
Площадь кухни
10.1 м²
Площадь комнат
11+10.7 м²
Высота потолков
2.74 м
Этаж
11
Окна выходят
На улицу
О доме
Год постройки
2028
Этажность
12
Материал постройки
Монолитный
Материал перекрытий
Монолитные
Отопление
Центральное
Парковка
Подземная
Расположение
Россия, Санкт-Петербург, Пушкинский район, посёлок Шушары, ЖК Клюква Парк
Звёздная
4 мин.
Купчино
4 мин.
Московская
7 мин.
Дунайская
7 мин.
Шушары
7 мин.
Проспект Славы
9 мин.
Ленинский проспект
9 мин.
Проспект Ветеранов
10 мин.
Ипотечный калькулятор
Заполните 1 анкету — получите предложения от десятков банков на специальных условиях
Программа ипотеки
Стоимость жилья, ₽
Первый взнос, ₽
Срок кредита
от 5.75%
Ставка
от 73 211 ₽
Платеж в месяц
Расчёт носит информационный характер и не является публичной офертой
Похожие объекты





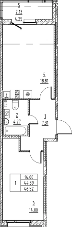
2-комн. квартира, 43,9 м², 7/12 эт.




2-комн. квартира, 43,9 м², 6/12 эт.





2-комн. квартира, 44,4 м², 2/12 эт.





2-комн. квартира, 43,9 м², 9/12 эт.
Консультант по новостройкам
11 637 176 ₽
248 128 ₽/м²







